Quadrilocale in vendita

Bergamo, via broseta
€ 630.000
4 locali 4 locali
170 Mq 170 Mq
2 bagni 2 bagni

Quadrilocale in vendita

Bergamo, via broseta

Descrizione annuncio

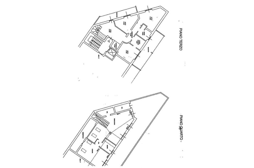
BERGAMO - VIA BROSETA

In zona centrale e ben servita, introvabile attico e super attico servito da ascensore in contesto elegante e di recente realizzazione.

La soluzione, inondata di luce e con pregevoli finiture, si sviluppa su due livelli collegati da scala interna.

Al piano terzo ci accoglie un ampio e fruibile atrio, attrezzato di armadiature su misura e a tutta altezza. Questo ambiente con uscita diretta al primo terrazzo, e con accesso alla zona notte ben disimpegnata, conduce attraverso una scala interna al piano superiore, dove si sviluppa la luminosa e panoramica zona giorno.

Il soggiorno al piano quarto ed ultimo si articola in due comodi ambienti, idealmente divisi da un camino dal moderno design. L'ampio leaving e la zona pranzo da cui si accede alla grande cucina abitabile.

Unico ed introvabile il grande terrazzo accessibile da tutta la zona giorno con una spettacolare vasca idromassaggio, che grantisce momenti di assoluto relax godendo di una invidiabile vista sui colli e su città alta.

Le camere da letto sono tre ed alla matrimoniale si accede attraverso una grande ed attrezzata cabina armadio. Eleganti e luminosi i due bagni.

Completano la proprietà, due autorimesse singole e una grande cantina.

Mostra tutto

Nelle vicinanze

Trasporto pubblico Trasporto pubblico
Bergamo Bassa
Bergamo Bassa
1,3 Km
Bergamo Alta
Bergamo Alta
1,5 Km
Bergamo FS
Bergamo FS
2,0 Km
Bergamo Borgo Palazzo
Bergamo Borgo Palazzo
2,6 Km
263
263
90 m
Ricariche auto elettriche Ricariche auto elettriche
A2A BG Goldoni
380 m
A2A BG Cerasoli
960 m
A2A BG Italcementi Piscina Comunale
990 m
A2a BG Fast Ospedale Papa Giovanni XXIII
1,2 Km
A2A BG Fratelli Calvi
1,4 Km
Scuole Scuole
Scuola Primaria Diaz
220 m
Scuole
310 m
scuola secondaria di primo grado Amedeo di Savoia
310 m
Scuola Elementare Scuri
320 m
Scuola elementare Gianni Rodari
500 m
Farmacia Farmacia
Farmacia
170 m
Parafarmacia Broseta
310 m
Farmacia Piazza Varsavia
600 m
Farmacia Comunale N.2
650 m
Farmacia Comunale Santa Lucia
660 m
Ospedali Ospedali
Casa di Cura San Francesco
530 m
Cups Clinica Castelli
620 m
Clinica Castelli
640 m
Presidio ASL Matteo Rota
920 m
R.S.A. Santa Chiara
1,0 Km
Supermercati Supermercati
Aldi
180 m
Coop
370 m
Conad
710 m
Carrefour Express
960 m
Esselunga di Via San Bernardino
1,4 Km
Negozi Negozi
Fornaio
70 m
Forno artigianale
160 m
Gastronomia Il Piacere
220 m
Panificio Forneria Rota
410 m
Forneria Rota
420 m
Bar Bar
Bar
250 m
In & out
300 m
Bar
370 m
Bar H
570 m
Compton Cafè
580 m
Ristoranti Ristoranti
Macelleria con Ristoro - Carminati
320 m
Trattoria D’Ambrosio
530 m
Osteria Risi.co
600 m
Mishi Mishi
670 m
Al Carroponte
680 m
Mostra tutto

Caratteristiche

Rif.:
61146794
Piano:
4 di 4 con ascensore (Piano attico)
Box:
2
Terrazzi:
3
Camere da letto:
3
Arredamento:
Parziale
Mostra tutto
Prezzo Prezzo
€ 630.000
Rata mutuo Rata mutuo
€ 2.974 / mese
Spese annue Spese annue
€ 3.600
Proponi il tuo prezzoProponi il tuo prezzo

Classe Energetica

E
E
E
E
E
E
E
E
E
EP globale non rinnovabile:
232.73 kW h/m² anno
EP invernale del fabbricato:
EP estiva del fabbricato:
Anno di costruzione:
2005
Riscaldamento:
Autonomo
Tipo impianto:
A radiatori
Tipo alimentazione:
Metano

Ti interessa visionare l'immobile?

Fissa un appuntamento  Fissa un appuntamento

Richiedi informazioni

Clicca su Leggi per aprire l'informativa
* Questi campi sono obbligatori

Calcola il tuo mutuo

Semplice e senza impegno
Anticipo

( % )
Mutuo

( % )

pochi semplici passi

inserisci i tuoi dati
Questionario completato
Grazie per aver richiesto un appuntamento senza impegno con un nostro Consulente del Credito e Assicurativo.

Hai inserito correttamente tutti i dati necessari e a breve riceverai una e-mail con un link da convalidare per inviare i tuoi dati.
Affiliato
Bergamo Centro Srl
Via Verdi, 28 24122 Bergamo (BG)

Il nostro staff


  • Alessandro Culurgioni
    Affiliato

  • Marco Cifalinò
    Collaboratore

  • Antonella Amalfitano
    Coordinatrice

  • Roberto Martinelli
    Affiliato

  • Giacomo Piccini
    Collaboratore
Via Verdi, 28 24122 Bergamo (BG)
Zona: Bergamo Centro - Santa Lucia - Borgo Pignolo - Città Alta
Mostra su mappa
Orari: lunedì - venerdì: 09.00 - 13.00 / 14.30 - 20.00, sabato 09.00 - 13.00
Affiliato
Bergamo Centro Srl
Via Verdi, 28 24122 Bergamo (BG)

2025 Tecnocasa Franchising S.p.A. - P. IVA 08365160152 - Via Monte Bianco 60/A 20089 Rozzano (MI). Ogni agenzia ha un proprio titolare ed è autonoma. Privacy policy | Policy utilizzo | Cookie policy