Monolocale in vendita

Bergamo, Via S. Benedetto - Centro
€ 235.000
Prezzo aggiornato
1 locale 1 locale
45 Mq 45 Mq
1 bagno 1 bagno

Monolocale in vendita

Bergamo, Via S. Benedetto - Centro

Descrizione annuncio

BERGAMO - VIA SAN BENEDETTO

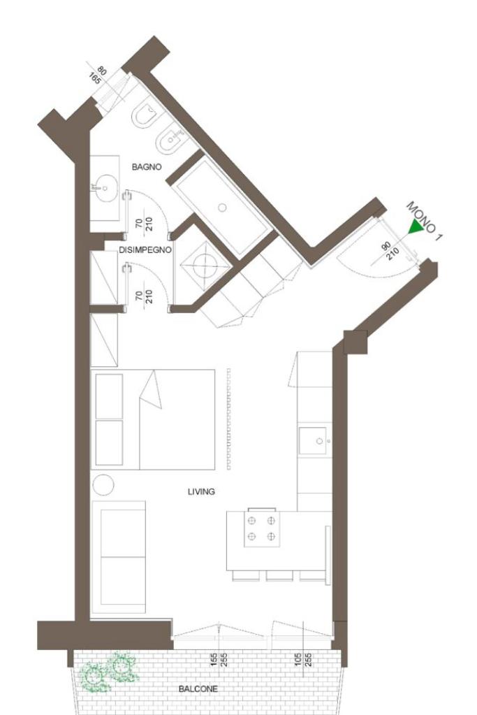
Nel cuore di Bergamo, in una zona tranquilla e riservata tra la Rotonda dei Mille e Viale Vittorio Emanuele, grazioso monolocale al primo piano in un elegante palazzo servito da ascensore. L’ingresso è dotato di abbassamenti estetici con luci a led e un corridoio dove si può inserire un’armadiatura. La zona living è dotata di un angolo cottura con penisola. Il bagno è finestrato e dotato di un’ampia doccia in resina e finiture di alta qualità. Infine, è presente un balcone disponibile un box doppio nello stabile.
L’appartamento è stato progettato con cura per ottimizzare gli spazi e ogni dettaglio è studiato per offrire la massima personalizzazione: è possibile adattare il progetto e le finiture secondo i propri gusti, creando così un’abitazione su misura.
Grazie al suo elevato potenziale di redditività, questo immobile rappresenta un’ottima opportunità sia per chi desidera investire nel mercato immobiliare, sia per chi chi desidera vivere in un contesto esclusivo, a due passi dal centro, dalla stazione e dai principali servizi, senza rinunciare alla tranquillità.

Possibilità di recupero fiscale sui lavori.

Mostra tutto

Nelle vicinanze

Trasporto pubblico Trasporto pubblico
Bergamo Bassa
Bergamo Bassa
490 m
Bergamo Alta
Bergamo Alta
680 m
Bergamo FS
Bergamo FS
950 m
Bergamo Borgo Palazzo
Bergamo Borgo Palazzo
1,4 Km
9
9
80 m
Ricariche auto elettriche Ricariche auto elettriche
A2A BG Fast Porta Nuova
410 m
Bergamo Pascoli | RESSOLAR FAST
660 m
A2A BG Fast Papa Giovanni XXIII
780 m
A2A BG Cefalonia
820 m
A2A BG Fratelli Calvi
890 m
Scuole Scuole
Scuole I e II grado (Opera Sant'Alessandro)
180 m
Scuola Montessori Bergamo
350 m
Scuola S.B. Capitanio (Opera Sant'Alessandro)
410 m
L'arcobaleno di Ribi
470 m
Istituto Scolastico Paritario Sant'Angela Merici
500 m
Farmacia Farmacia
Farmacia Comunale 11
230 m
Parafarmacia dei Mille
250 m
Farmacia Terni
280 m
Natur House
330 m
Farmacia Centrale
380 m
Ospedali Ospedali
Habilita San Marco s.p.a. - sede
190 m
R.S.A. Santa Chiara
260 m
Habilita San Marco s.p.a. - sezione
310 m
Presidio ASL Matteo Rota
340 m
Clinica Castelli
610 m
Supermercati Supermercati
Conad
300 m
Carrefour
400 m
Carrefour Express
450 m
IN'S
740 m
PAM
770 m
Negozi Negozi
Maurizio Valzania
20 m
Lalla
130 m
Bugada
140 m
Laura Natali Outlet
170 m
Negozi
180 m
Bar Bar
Bar Hemingway
240 m
Caffè Ristretto
370 m
Il Bitterino di Porta Nuova
420 m
Mi Snack
530 m
Caffetteria
550 m
Ristoranti Ristoranti
Le Iris
70 m
A.I. Giardini di San Marco
120 m
Bobino
170 m
Al Duse
170 m
Okai
170 m
Mostra tutto

Caratteristiche

Rif.:
61108004
Piano:
1 di 5 con ascensore (Piano basso)
Box:
1
Posti auto:
3
Balconi:
1
Camere da letto:
1
Mostra tutto
Prezzo Prezzo
€ 235.000
Prezzo box Prezzo box
€ 95.000
Rata mutuo Rata mutuo
€ 1.114 / mese
Spese annue Spese annue
€ 1.500
Proponi il tuo prezzoProponi il tuo prezzo

Classe Energetica

A1
A1
A1
A1
A1
A1
A1
A1
A1
EP globale non rinnovabile:
32.00 kW h/m² anno
EP globale rinnovabile:
10.00 kW h/m² anno
EP invernale del fabbricato:
EP estiva del fabbricato:
Anno di costruzione:
1960
Riscaldamento:
Centralizzato
Tipo impianto:
A radiatori
Tipo alimentazione:
Metano

Prezzo ridotto di €1 (5%%)

Ti interessa visionare l'immobile?

Fissa un appuntamento  Fissa un appuntamento

Richiedi informazioni

Clicca su Leggi per aprire l'informativa
* Questi campi sono obbligatori

Calcola il tuo mutuo

Semplice e senza impegno
Anticipo

( % )
Mutuo

( % )

pochi semplici passi

inserisci i tuoi dati
Questionario completato
Grazie per aver richiesto un appuntamento senza impegno con un nostro Consulente del Credito e Assicurativo.

Hai inserito correttamente tutti i dati necessari e a breve riceverai una e-mail con un link da convalidare per inviare i tuoi dati.
Affiliato
Bergamo Centro Srl
Via Verdi, 28 24121 Bergamo (BG)

Il nostro staff


  • Alessandro Culurgioni
    Affiliato

  • Marco Cifalinò
    Collaboratore

  • Antonella Amalfitano
    Coordinatrice

  • Roberto Martinelli
    Affiliato

  • Giacomo Piccini
    Collaboratore
Via Verdi, 28 24121 Bergamo (BG)
Zona: Bergamo Centro - Santa Lucia - Borgo Pignolo - Città Alta
Mostra su mappa
Orari: lunedì - venerdì: 09.00 - 13.00 / 14.30 - 20.00, sabato 09.00 - 13.00
Affiliato
Bergamo Centro Srl
Via Verdi, 28 24121 Bergamo (BG)

2026 Tecnocasa Franchising S.p.A. - P. IVA 08365160152 - Via Monte Bianco 60/A 20089 Rozzano (MI). Ogni agenzia ha un proprio titolare ed è autonoma. Privacy policy | Policy utilizzo | Cookie policy