Bilocale in affitto

Bergamo, Via Antonio Locatelli - Centro
€ 800 / mese
2 locali 2 locali
60 Mq 60 Mq
1 bagno 1 bagno

Bilocale in affitto

Bergamo, Via Antonio Locatelli - Centro

Descrizione annuncio

BERGAMO CENTRO - VIA LOCATELLI

No B&B o case vacanza

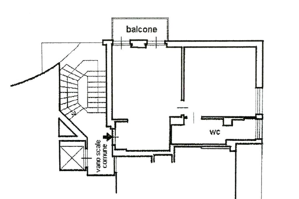
Nel cuore del centro di Bergamo, proponiamo in locazione un ampio bilocale situato al secondo piano di un contesto residenziale dotato di ascensore.

L'immobile, costruito nel 1970, offre una superficie di 60 mq ben distribuiti. L'appartamento si apre su un luminoso soggiorno con angolo cottura, che si affaccia su un ampio balcone, ideale per momenti di relax all'aperto.

La zona notte comprende una spaziosa camera matrimoniale, mentre il bagno, finestrato e dotato di doccia, garantisce comfort e praticità.

L'appartamento viene proposto arredato, pronto per essere abitato.

La posizione centrale permette di godere di tutti i servizi e le comodità che la città offre, rendendolo una scelta ideale per chi desidera vivere in una zona ben servita e dinamica.

LIBERO DA SUBITO

Contratto di affitto 4+4

Mostra tutto

Nelle vicinanze

Trasporto pubblico Trasporto pubblico
Bergamo Bassa
Bergamo Bassa
240 m
Bergamo Alta
Bergamo Alta
410 m
Bergamo FS
Bergamo FS
1,2 Km
Bergamo Borgo Palazzo
Bergamo Borgo Palazzo
1,5 Km
5
5
150 m
Ricariche auto elettriche Ricariche auto elettriche
A2A BG Fast Porta Nuova
670 m
Bergamo Pascoli | RESSOLAR FAST
810 m
A2A BG Cefalonia
910 m
A2A BG Palanorda
930 m
A2A BG Fast Colle Aperto
990 m
Scuole Scuole
Scuola Montessori Bergamo
150 m
Istituto Scolastico Paritario Sant'Angela Merici
300 m
Scuole I e II grado (Opera Sant'Alessandro)
420 m
Liceo Classico Paolo Sarpi
490 m
Centro Internazionale Studi Montessoriani
520 m
Farmacia Farmacia
Farmacia Comunale 11
300 m
Farmacia Guidetti
420 m
Farmacia Terni
460 m
Parafarmacia dei Mille
540 m
Farmacia Piazzoli
570 m
Ospedali Ospedali
Habilita San Marco s.p.a. - sede
100 m
Habilita San Marco s.p.a. - sezione
110 m
R.S.A. Santa Chiara
460 m
Presidio ASL Matteo Rota
470 m
Clinica Castelli
750 m
Supermercati Supermercati
Conad
500 m
Carrefour
670 m
Carrefour Express
710 m
PAM
770 m
IN'S
890 m
Negozi Negozi
Promo Company
60 m
Arena Fashion
80 m
Panificio Sana
90 m
Dress Salad
120 m
Negozi
120 m
Bar Bar
Bar Hemingway
530 m
Giro Mura
540 m
Caffè Ristretto
550 m
Il Bitterino di Porta Nuova
670 m
Caffetteria
680 m
Ristoranti Ristoranti
Ristorante a MODO
130 m
A.I. Giardini di San Marco
190 m
Le Iris
230 m
Fermo Posta
250 m
Bobino
280 m
Mostra tutto

Caratteristiche

Rif.:
61130896
Piano:
1 di 5 con ascensore (Piano medio)
Balconi:
1
Camere da letto:
1
Arredamento:
Completo
Condizionamento:
Assente
Mostra tutto
Prezzo Prezzo
€ 800 / mese
Spese annue Spese annue
€ 1.800

Classe Energetica

D
D
D
D
D
D
D
D
D
EP globale non rinnovabile:
123.44 kW h/m² anno
EP invernale del fabbricato:
EP estiva del fabbricato:
Anno di costruzione:
1970
Riscaldamento:
Centralizzato
Tipo impianto:
A radiatori
Tipo alimentazione:
Metano

Ti interessa visionare l'immobile?

Fissa un appuntamento  Fissa un appuntamento

Richiedi informazioni

Clicca su Leggi per aprire l'informativa
* Questi campi sono obbligatori
Affiliato
Bergamo Centro Srl
Via Verdi, 28 24122 Bergamo (BG)

Il nostro staff


  • Alessandro Culurgioni
    Affiliato

  • Marco Cifalinò
    Collaboratore

  • Antonella Amalfitano
    Coordinatrice

  • Roberto Martinelli
    Affiliato

  • Giacomo Piccini
    Collaboratore
Via Verdi, 28 24122 Bergamo (BG)
Zona: Bergamo Centro - Santa Lucia - Borgo Pignolo - Città Alta
Mostra su mappa
Orari: lunedì - venerdì: 09.00 - 13.00 / 14.30 - 20.00, sabato 09.00 - 13.00
Affiliato
Bergamo Centro Srl
Via Verdi, 28 24122 Bergamo (BG)

2025 Tecnocasa Franchising S.p.A. - P. IVA 08365160152 - Via Monte Bianco 60/A 20089 Rozzano (MI). Ogni agenzia ha un proprio titolare ed è autonoma. Privacy policy | Policy utilizzo | Cookie policy